Woolgoolga

20 River St

Floorplans

Click To View

Construction Commenced

Construction has commenced on these stunning collection of 9 townhouses in one of the most sort after suburbs, Woolgoolga. From the moment you arrive home, you'll appreciate the easy living laid back beachside lifestyle Woolgoolga offers.

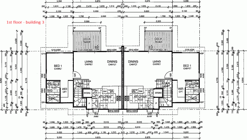
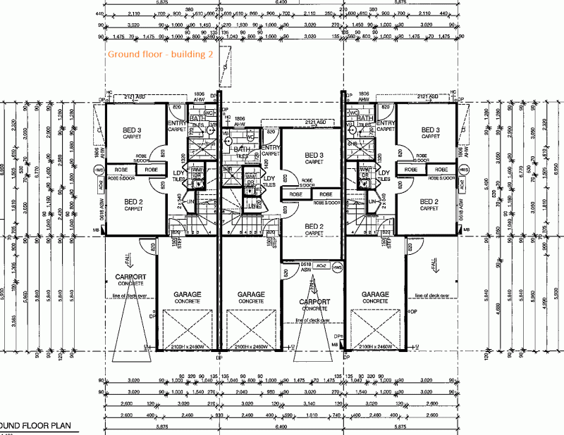
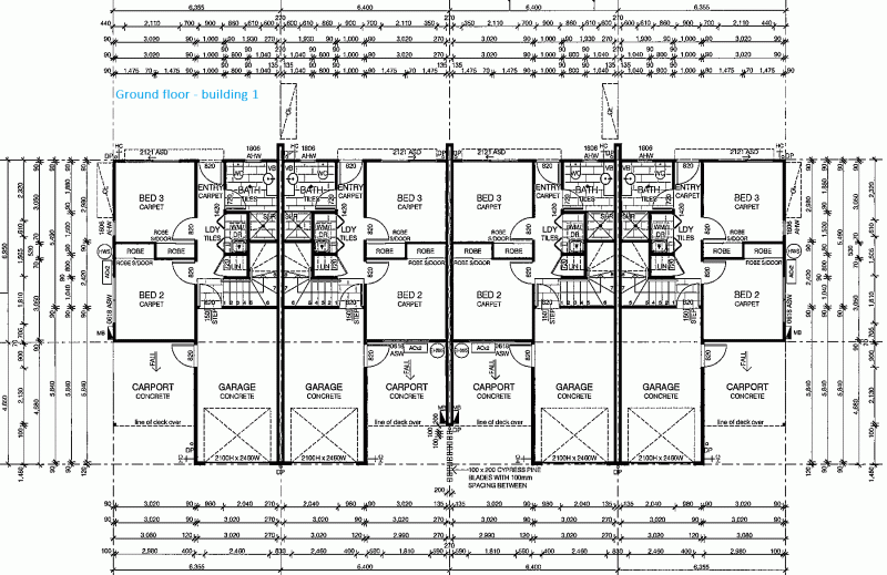
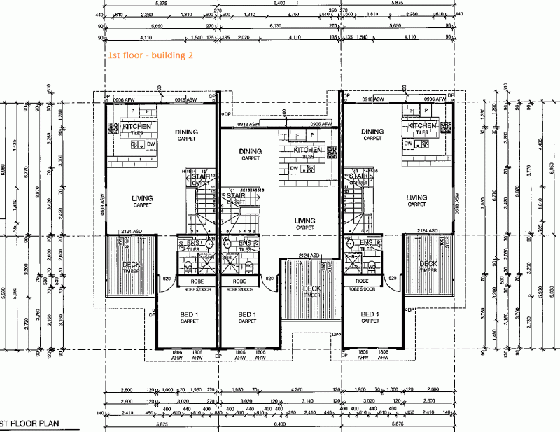
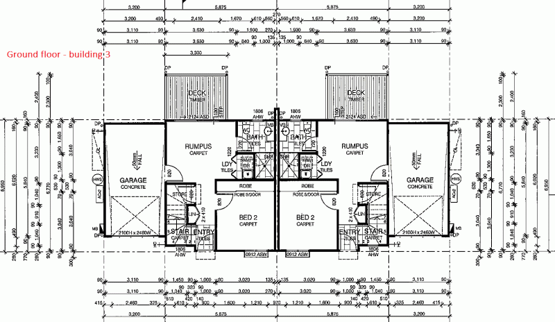
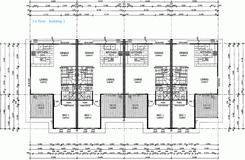
All residences feature 3 bedrooms, 2 bathrooms and either 1 or 2 car accommodation.

Modern fixtures and fittings including polyurethane gloss kitchen cupboards and stainless steel appliances. Chrome door furnishings, beautiful ceramic tiling and easy internal access from your garage.

Landscaped courtyards and warm timber entertainment decks to capture the ocean views and sea breezes make these residences an easy living lifestyle choice.

Purchase off the plan today and secure your piece of Woolgoolga.

Townhouse Key Features:
- Modern interiors
- Stylish kitchens & bathrooms
- Balconies with ocean views

Location Key Details:
- 900m to Supermarket, Cafes, Restaurants & Specialty stores
- 15km to Coffs Harbour
- Just over 1km to beautiful Woolgoolga main beach

Sold

3
2
2

Property Features

Property Agent